
KZ Auschwitz: Der geplante Einbau der
Kurzwellen-Entlausung im Gaskammerhaus
Cc Auschwitz: The projected installation of short
wave delousing constructions in the gas chamber house
Gorbatschow-Akten / Gorbatshew documents
von Michael Palomino
aus/from: Claude Pressac: Die Krematorien von Auschwitz.
Piper-Verlag 1994
|
|
 |
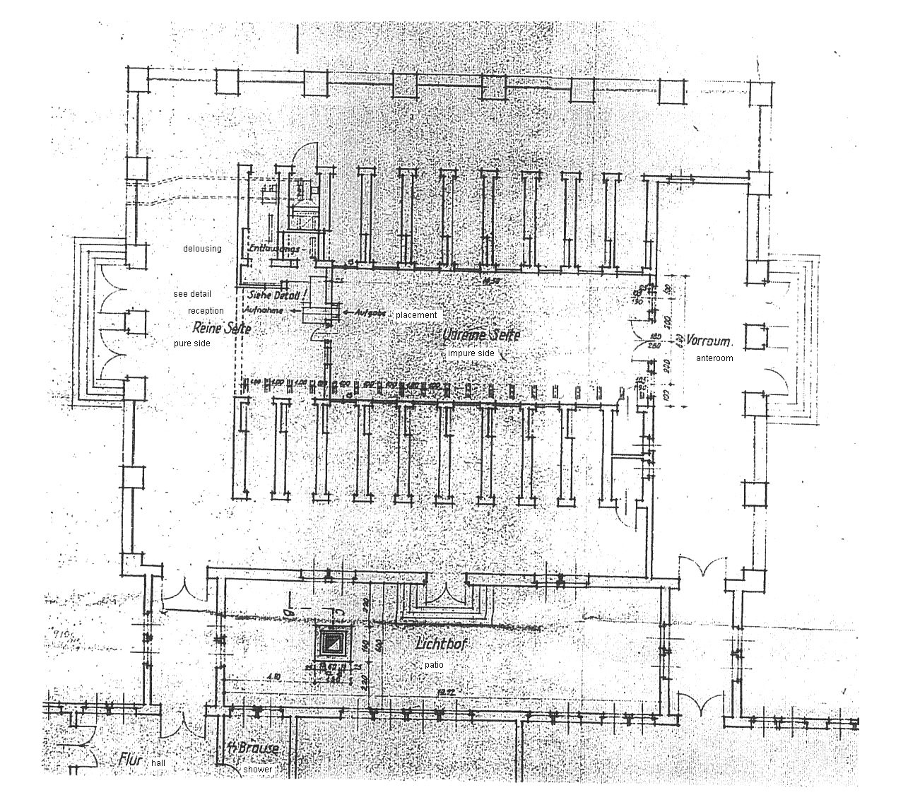
Auschwitz: Geplante Kurzwellen- Entlausungsanlage
von Siemens im Gaskammerhaus 1943
Dokument 41-42: Auszüge aus dem Plan Nr.2693 der Bauleitung
vom 5. August 1943 für den Einbau einer Siemens-Kurzwellen-
Entlausungsanlage, hier mit einer Kammer (Plan und
Schnittzeichnung); die Anlage erstreckt sich über insgesamt
vier [zwei?] der ursprünglichen Zellen.
Auschwitz: Planned short
wave delousing construction of Siemens in the gas chamber
house 1943
Documents 41-42: Excerpts from the plan No. 2693 of the
construction management from 5th August 1943 for the
installation of a Siemens short wave delousing system, here
with one chamber (plan and profile); the system would
stretch across four [two?] of the cells which have been
planned first. |
|
Grossaufnahme
/
foto in big size
 |
 |
|
|
|
 |
Plan zum Einbau von zwei
Kurzwellen-
Entlausungs-
anlagen im Gaskammerhaus
Dokument 56: Auszug aus dem Plan Nr. 3139
der Bauleitung vom 6. November 1943, der die Anordnung von
zwei Kammern der Entlausungsstation der Firma Siemens zeigt
(Plan); die Anlage erstreckt sich über acht der
ursprünglichen Zellen.
Project for the
installation of two short wave delousing
construction in the gas chamber house
Document 56: excerpt of the plan No. 3139 of the
construction management from 6th November 1943, showing two
deloucement chambers of Siemens (plan); this construction
leads over 8 of the first planned chambers [first projected
for deloucement with cyclon B]. |
|
Grossaufnahme
des
Zentrums / big foto of the center
 |